Seeking to explore power as crucial factor in the design of the built environment, we will look at energy systems and related objects, from sites of generation to spaces of consumption, from distribution networks to control rooms.

Tutors: Filip Geerts and Sanne van den Breemer
Director of Studies: Salomon Frausto

Contributors: Santiago Ardila, Juan Benavides, Daniella Camarena, Stef Dingen, Marco Fusco, Jack Garay Arauzo, Theodora Gelali, Shaiwanti Gupta, Hao Hsu, Marianthi Papangelopoulou, Felipe Quintero, Gent Shehu, Siyuan Wang


@theberlage.nl




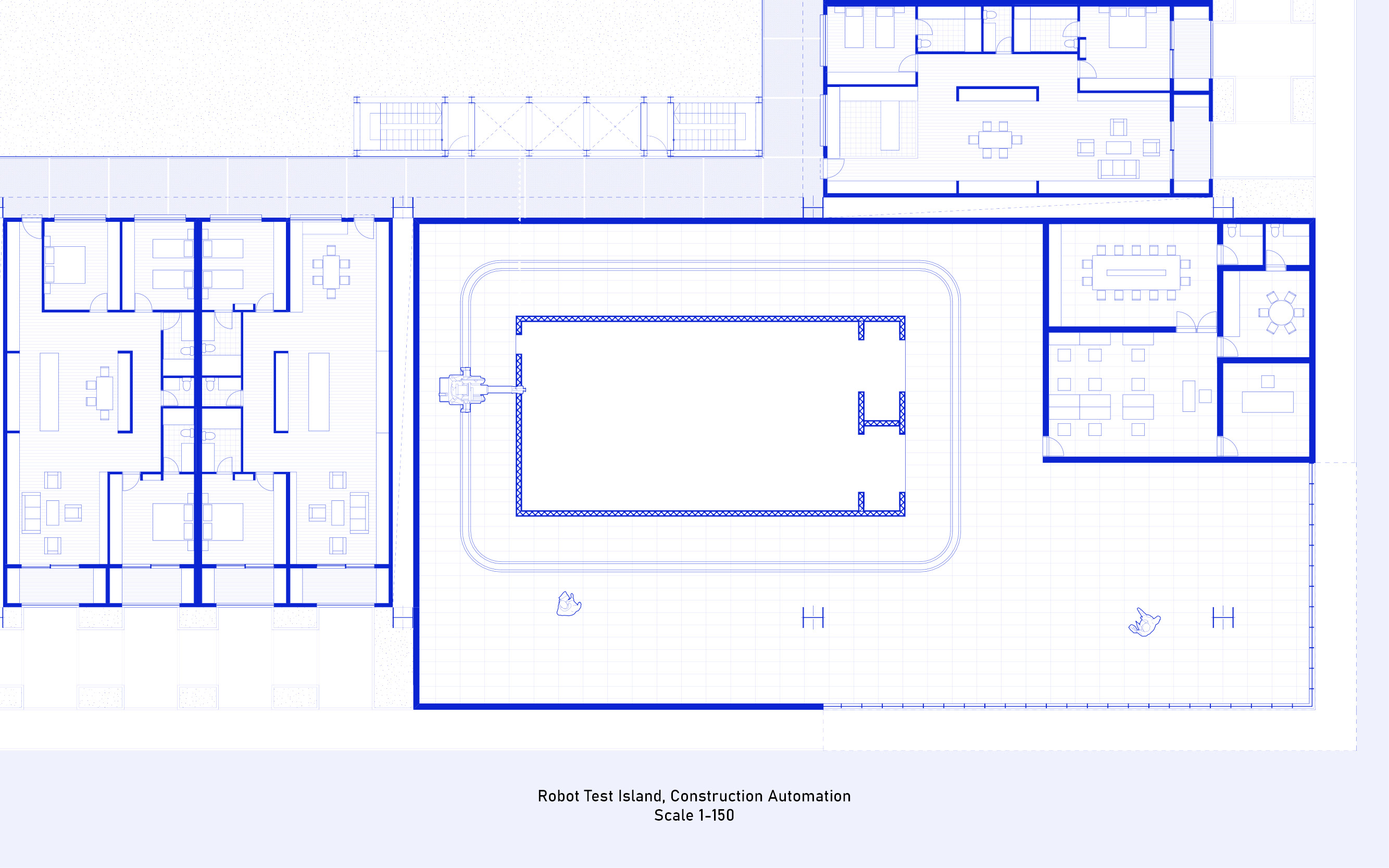
Robot Test Island

Felipe Quintero (CO)

An artificial island for the testing of robotics and automation where machine and human work together to develop the new technologies of the future.