Project Global – Spring 2024
The Logistics of Milk and Timber is part of a multi-year investigation on global supply chains in the Core Network Corridors established by the European Union. This year, the research project aims to describe and document the logistics environment of the North Sea-Baltic Corridor through the lens of milk and timber, from the small scale of the object to the scale of the corridor. The exercise explores the spaces, trajectories, materials, and actors that take part in the supply chain to create a comparative and synthetic study of both industries. Focusing on Estonia, the research will consider the involvement of local, national, and extranational factors in the timber and milk supply chains. The investigation aims to project potential future developments and their architectural implications to define relevant spatial and design questions. The project is based on an understanding of the spatial, natural, or technologically modified properties of milk and timber; their cultivation, extraction, processing, distribution, and consumption. The logistic environments and instruments involved in these processes are studied for their individual characteristics and co-dependent organizations mediating between economic and ecological sustainability, and between the Estonian and trans-European contexts through the North Sea Baltic Corridor.
Representative diagrams, drawings, and maps showcase the interdependent spatial relations between living organisms, human consumption needs, constructed objects, product values, logistic spaces, and infrastructure that together constitute supply chain networks. This dossier documents the collective research on both industries including specific products. The more in-depth case studies are structured within a framework that allows for comparability between their key elements.
Table of Contents
Natural Resources
The Corridor
Supply Chain
14 Questions
Glossary
The first part of the semester concluded with fieldwork in Estonia, which was documented in the form of expert conversations, site photos, and a documentary film. Excerpts from the fieldwork are included in the collective documentation and allow for the formation of fourteen design questions relevant to the spatial implications of the logistics of milk and timber.
Expert conversations
Piatu Suurfam Lely
KODA by Kodasema
AS Graanul Invest Imavere
Estonian Timber Association
Piatu Suurfam Lely
KODA by Kodasema
AS Graanul Invest Imavere
Estonian Timber Association

A series of photos on the timber and dairy industries
Documentary film: Moving Milk & Timber
This documentary film looks at the logistics environment of milk and timber production in Estonia by following the path of the most profitable products of each natural resource: fresh milk and prefabricated wooden houses. The film introduces the spaces in which these two products are extracted, processed, stored, distributed, and sold, as well as the means of transportation used in their supply chain while traversing across Estonian territory. By looking at the logistics involved in these products, the film reflects on current production and consumption tendencies, the implications of industrial and economic growth in the country, and the changing relationship between humans and the land.
Directors: Thomas Gkikas, Ana Nuño de Buen, Yuhe Tan
This documentary film looks at the logistics environment of milk and timber production in Estonia by following the path of the most profitable products of each natural resource: fresh milk and prefabricated wooden houses. The film introduces the spaces in which these two products are extracted, processed, stored, distributed, and sold, as well as the means of transportation used in their supply chain while traversing across Estonian territory. By looking at the logistics involved in these products, the film reflects on current production and consumption tendencies, the implications of industrial and economic growth in the country, and the changing relationship between humans and the land.
Directors: Thomas Gkikas, Ana Nuño de Buen, Yuhe Tan
Writers: Thomas Gkikas, Ujal Gorchu, Ana Nuño de Buen
Cinematographer: Juan Benavides
Editors: Juan Benavides, Yuhe Tan
Narrator: Felix Verheyden
Fieldwork Researchers: Chaomin Chen, Kelly Olinger, Nien-Heng Yang
The second part builds on the analysis and fieldwork conducted in the previous stage, and expands on it through substantiated spatial extrapolations. Fourteen design questions connected to future developments of the milk and timber logistics serve as the starting point for fourteen architectural projects located throughout Estonia. Challenging current notions of resource extraction, production, transportation, and consumption, the contributions envision sustainable farming and forest management practices, recover disregarded by-products, rethink the potential value of waste, review the use of technology in rural areas, improve transportation conditions, and promote circular economies, conscious consumption, and community building. The contributions address landscapes, buildings, spaces and objects, and in doing so, reflect on how design considerations relate to changing social, economic, and environmental determinants.
Value of Provenance
Nicolaos Charalambous
How can the concept of ‘milk run’ help farms in rural Estonia access larger urban retail outlets?
Nicolaos Charalambous
How can the concept of ‘milk run’ help farms in rural Estonia access larger urban retail outlets?
The contribution addresses how the embrace of the provenance of raw milk through its collection in individual, specially designed and bar-coded cans, will lead to changes in consumption habits and production patterns of the dairy sector in Estonia and ultimately, alter the cultural appropriation of raw milk as a locally farmed, fully nutritional and sustainable product.
Dairy Neighborhood
Kelly Olinger
Kelly Olinger
How can consumer empowerment and education go beyond the food label and address daily routine to foster sustainable food consumption and reduce food waste?
From Timber Extraction to Agroforestry
Ujal Gorchu
Ujal Gorchu
Other than timber extraction which has a specific temporal cycle and spatial scale, how can the forest become a year-long source of income and employment for rural communities?
Digested Waste
Ana Nuño de Buen
Ana Nuño de Buen
From the logistical infrastructure of a waste collection system to the typology of biogas plants, how can the design of this emerging industry be approached?
Native Cow Utopia
Sneha Gireesh
Sneha Gireesh
How can the current export and consumption of milk in Estonia be an opportunity to develop the situation in a sustainable manner with the development and sustenance of organic dairy farms with focus on measures for animal welfare ?
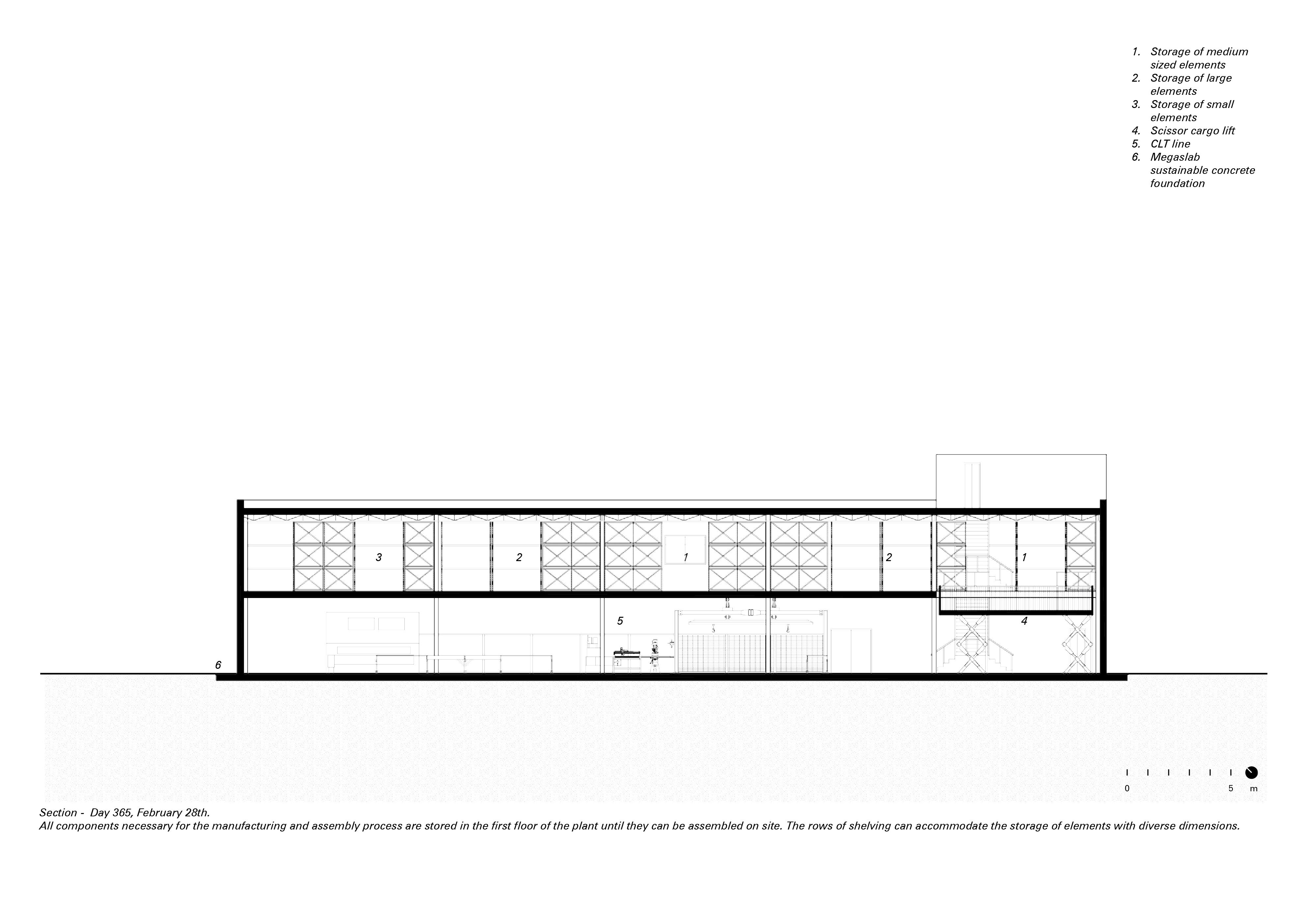
REWO: Wood Reuse Center
Chaomin Chen
Chaomin Chen
If recycled wood becomes an economically sustainable raw material, what will related facilities look like?
Lodging House for a Truck Platoon
Felix Verheyden
Felix Verheyden
Can CHP plants play a vital role in the fuel transition that is aimed for the NSBC? How can territorial planning of CHP plants in relation to tank stations contribute to the potential of this transition?
Parcel Pickup Store
Han Yang
Han Yang
As automated parcel machines roll out in rural areas, how will the network serve the retail sector in rural areas?
The Kin Farm
Lenneke Slangen
Lenneke Slangen
How can we redefine animal, robot and human (conditions) in the harvesting and retailing of milk products in response to the future robotization of the milk supply chain?
Shared Infrastructure
Thomas Gkikas
Thomas Gkikas
What is the relationship between the fundamentally productive nature of logistics centers and their non-productive spaces, the different actors who may engage with them, and how these factors may be influenced by future digital developments?
Microgrid of Reforestation
Nien-Heng Yang
Nien-Heng Yang
How do EU energy pricing mechanisms and subsidies for renewable energy impact the timber industry’s strategies for wood pellet production, and how does this integration with biomass energy systems shape the industry’s landscape?
Forest City INC
Maria Stergiou
Maria Stergiou
If higher automation will be integrated to achieve full customization, how will prefabricated houses superfactory look like?
Milky-Plastic Land
Yuhe Tan
Yuhe Tan
In the context of the EU Green Deal, how to support the small scale farms on Saaremaa, by using the way of producing the by-products, increases the diversity of dairy products while maintaining sustainability?
Final conversation
An exhibition in the corridor

Participants
Nicolaos Charalambous
Chaomin Chen
Sneha Gireesh
Thomas Gkikas
Ujal Gorchu
Eliott Moreau
Ana Nuño de Buen
Kelly Olinger
Lenneke Slangen
Maria Stergiou
Yuhe Tan
Felix Verheyden
Han Yang
Nien Yang
Nicolaos Charalambous
Chaomin Chen
Sneha Gireesh
Thomas Gkikas
Ujal Gorchu
Eliott Moreau
Ana Nuño de Buen
Kelly Olinger
Lenneke Slangen
Maria Stergiou
Yuhe Tan
Felix Verheyden
Han Yang
Nien Yang
Teaching team
Juan Benavides
Sanne van den Breemer
Benjamin Groothuijse
Salomon Frausto
Juan Benavides
Sanne van den Breemer
Benjamin Groothuijse
Salomon Frausto
Guests
Tadeáš Ríha
Caroline Sohie
Diederik de Koning
Matiss Groskaufmanis
Hugo Corbett
Victor Muñoz Sanz
Tadeáš Ríha
Caroline Sohie
Diederik de Koning
Matiss Groskaufmanis
Hugo Corbett
Victor Muñoz Sanz